Bureaux lumineux et semi-aménagés à Meyrin

Référence: L68540

3740104 jours

Bureau à louer, Meyrin

Bureaux lumineux et semi-aménagés à Meyrin

Loyer net : CHF 13'725.-
Charges : N.C

Type

Bureau

Surface habitable (m²)

748.00

Nombre d'étage(s)

1

Étage

2

Montant parking

200

Disponible à partir du 11/03/2026

Situé au cœur de la zone industrielle et artisanale de Meyrin–Satigny, le bâtiment bénéficie d’un emplacement stratégique, à proximité immédiate de l’autoroute A1, de la gare de Satigny et de l’aéroport international de Genève.

L’immeuble, en bon état général, dispose d’un hall d’accueil récemment rénové. Il est équipé d’un ascenseur et d’un monte-charge desservant tous les étages, ainsi que d’un système de contrôle d’accès par badge, de sprinklers et de caméras de surveillance. Un service de conciergerie est également à disposition.

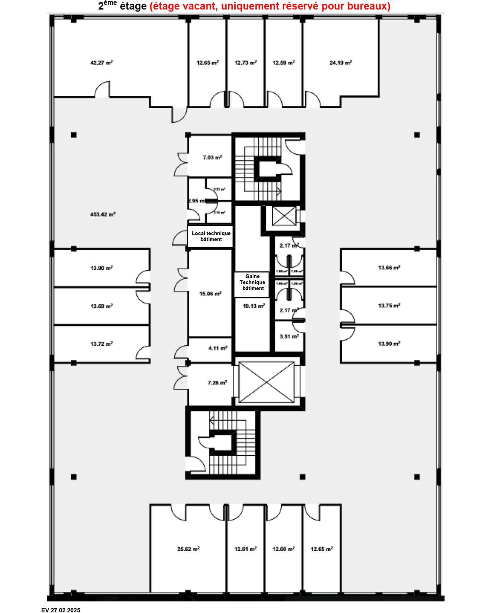
La surface proposée se situe au 2ᵉ étage. Elle fait un total de 748m2 divisible.
Lumineuse et modulable, elle se compose de quatre bureaux fermés, d’une cuisine entièrement aménagée et de deux blocs sanitaires communs. Les installations électriques sont intégrées en périphérie. L’ascenseur et le monte-charge permettent un accès direct aux locaux.

Cette surface est idéalement adaptée à une activité administrative compatible avec la zone industrielle, notamment dans les domaines pharmaceutique, biotechnologique, horloger ou informatique.

Des places de parking en sous-sol sont disponibles à la location au prix de CHF 200.– par place et par mois.
Un parking visiteurs est également à disposition à l’extérieur.

Adresse :
Rue du Pré-Bouvier 7, 1217 Meyrin

Emplacement du bien

AUTRES BIENS AUX ALENTOURS

RARE ! Surface d'atelier de 467m² au centre de Genève

GENÈVE SUISSE

Servette-Nations

CHF 7'783.-

TYPEATELIER

SURFACE 467 m²

Nous proposons à la location une surface d'atelier exceptionnelle de 467 m² située dans un bâtiment moderne et entièrement équipé, en plein cœur de Genève.

À seulement quelques minutes de l'autoroute et des principaux axes routiers, cette opportunité rare offre des prestations uniques sur le marché genevois.

Caractéristiques du bâtiment :

5 quais de chargement avec plateformes élévatrices pour faciliter vos opérations logistiques.
Accès direct au rail pour des livraisons rapides et efficaces.
Monte-charges de grande capacité disponibles pour la manutention de marchandises volumineuses.
Charge supportée par la dalle variant entre 1,5 tonnes et 500 kg selon les surfaces et étages.

Ce bien est idéal pour les entreprises cherchant une surface d'atelier moderne et fonctionnelle, à proximité immédiate du centre-ville.

Ne manquez pas cette opportunité unique à Genève.

Pour plus d'informations et pour visiter, contactez-nous dès aujourd'hui.
3740104 jours
RARE ! Surface d'atelier de 389 m² au centre de Genève

GENÈVE SUISSE

Servette-Nations

CHF 6'483.-

TYPEATELIER

SURFACE 389 m²

Nous proposons à la location une surface d'atelier exceptionnelle de 389 m² située dans un bâtiment moderne et entièrement équipé, en plein cœur de Genève.

À seulement quelques minutes de l'autoroute et des principaux axes routiers, cette opportunité rare offre des prestations uniques sur le marché genevois.

Caractéristiques du bâtiment :

5 quais de chargement avec plateformes élévatrices pour faciliter vos opérations logistiques.
Accès direct au rail pour des livraisons rapides et efficaces.
Monte-charges de grande capacité disponibles pour la manutention de marchandises volumineuses.
Charge supportée par la dalle variant entre 1,5 tonnes et 500 kg selon les surfaces et étages.

Ce bien est idéal pour les entreprises cherchant une surface d'atelier moderne et fonctionnelle, à proximité immédiate du centre-ville.

Ne manquez pas cette opportunité unique à Genève.

Pour plus d'informations et pour visiter, contactez-nous dès aujourd'hui.
3740104 jours
RARE ! Surface d'atelier de 250 m² au centre de Genève

GENÈVE SUISSE

Servette-Nations

CHF 4'167.-

TYPEATELIER

SURFACE 250 m²

Nous proposons à la location une surface d'atelier exceptionnelle de 250 m² située dans un bâtiment moderne et entièrement équipé, en plein cœur de Genève.

À seulement quelques minutes de l'autoroute et des principaux axes routiers, cette opportunité rare offre des prestations uniques sur le marché genevois.

Caractéristiques du bâtiment :

5 quais de chargement avec plateformes élévatrices pour faciliter vos opérations logistiques.
Accès direct au rail pour des livraisons rapides et efficaces.
Monte-charges de grande capacité disponibles pour la manutention de marchandises volumineuses.
Charge supportée par la dalle variant entre 1,5 tonnes et 500 kg selon les surfaces et étages.

Ce bien est idéal pour les entreprises cherchant une surface d'atelier moderne et fonctionnelle, à proximité immédiate du centre-ville.

Ne manquez pas cette opportunité unique à Genève.

Pour plus d'informations et pour visiter, contactez-nous dès aujourd'hui.
4740104 jours