Bureaux d’exception de 414m² au cœur du Quartier de l’Étang

Référence: L68478

4740104 jours

Bureau à louer, Châtelaine

Bureaux d’exception de 414m² au cœur du Quartier de l’Étang

Loyer net : CHF 11'730.-
Charges : N.C

Type

Bureau

Surface habitable (m²)

414.00

Nombre d'étage(s)

1

Étage

6

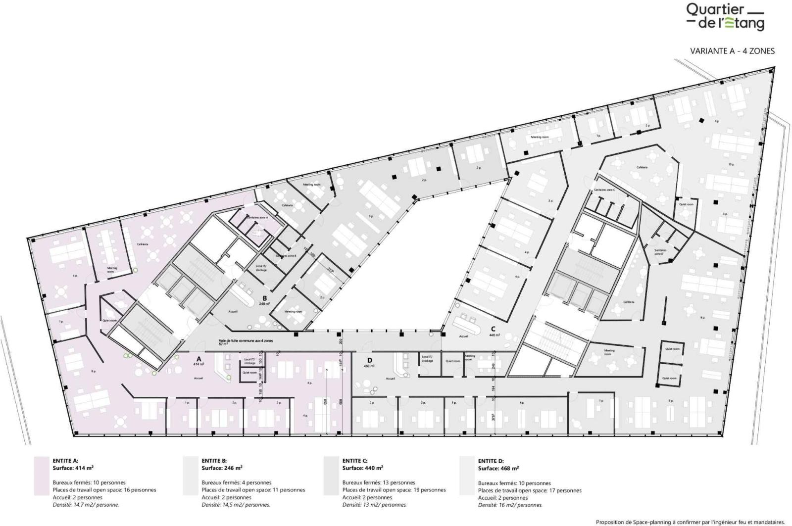
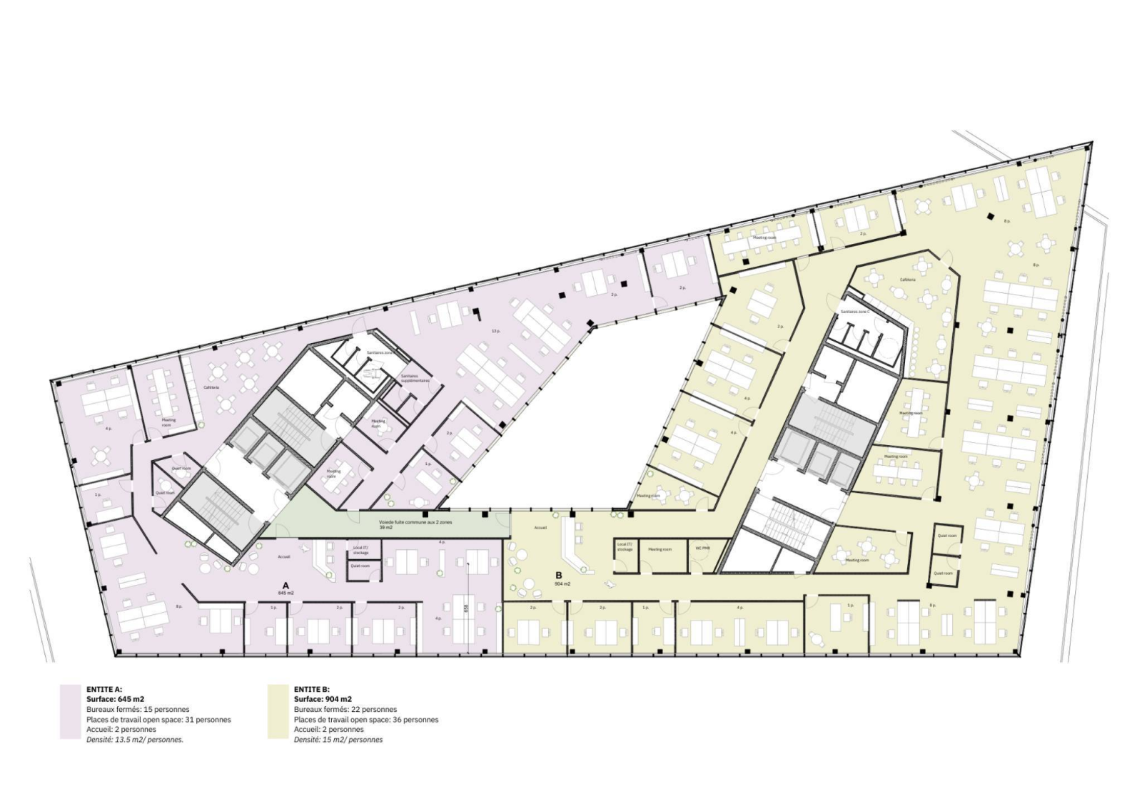
Situé au cœur du Quartier de l’Étang, pôle économique dynamique et durable, Le Belvédère s’impose comme le bâtiment le plus prestigieux du site. Il accueille notamment le siège de la banque Rothschild, confirmant son positionnement institutionnel et premium.

Nous proposons à la location une surface de bureaux d’environ 1’600 m², entièrement divisible, offrant une grande flexibilité d’implantation et des prestations de haut standing.

Surfaces disponibles :
- Surface A : 414 m²
- Surface B : 246 m²
- Surface C : 440 m²
- Surface D : 468 m²

Les surfaces peuvent être louées individuellement ou regroupées, selon les besoins de l’utilisateur.

Prestations :
- Surfaces livrées brutes, offrant une totale liberté d’aménagement
- Possibilité de livraison Plug & Play (clé en main) avec bureaux cloisonnés, salles de réunion et espaces collaboratifs
- Grandes surfaces vitrées garantissant une luminosité optimale
- Plateaux efficients, adaptés aux environnements open space
- Bâtiment de standing institutionnel, image et adresse valorisantes
- Quartier labelisé SNBS
- Nombreuses places de parking en sous-sol (public et privé)

Un environnement professionnel privilégié
- Quartier moderne, durable et parfaitement connecté
- Services, commerces et restauration à proximité immédiate
- Excellente accessibilité en transports publics et axes routiers

Emplacement du bien

AUTRES BIENS AUX ALENTOURS

RARE ! Surface d'atelier de 467m² au centre de Genève

GENÈVE SUISSE

Servette-Nations

CHF 7'783.-

TYPEATELIER

SURFACE 467 m²

Nous proposons à la location une surface d'atelier exceptionnelle de 467 m² située dans un bâtiment moderne et entièrement équipé, en plein cœur de Genève.

À seulement quelques minutes de l'autoroute et des principaux axes routiers, cette opportunité rare offre des prestations uniques sur le marché genevois.

Caractéristiques du bâtiment :

5 quais de chargement avec plateformes élévatrices pour faciliter vos opérations logistiques.
Accès direct au rail pour des livraisons rapides et efficaces.
Monte-charges de grande capacité disponibles pour la manutention de marchandises volumineuses.
Charge supportée par la dalle variant entre 1,5 tonnes et 500 kg selon les surfaces et étages.

Ce bien est idéal pour les entreprises cherchant une surface d'atelier moderne et fonctionnelle, à proximité immédiate du centre-ville.

Ne manquez pas cette opportunité unique à Genève.

Pour plus d'informations et pour visiter, contactez-nous dès aujourd'hui.
3740104 jours
RARE ! Surface d'atelier de 389 m² au centre de Genève

GENÈVE SUISSE

Servette-Nations

CHF 6'483.-

TYPEATELIER

SURFACE 389 m²

Nous proposons à la location une surface d'atelier exceptionnelle de 389 m² située dans un bâtiment moderne et entièrement équipé, en plein cœur de Genève.

À seulement quelques minutes de l'autoroute et des principaux axes routiers, cette opportunité rare offre des prestations uniques sur le marché genevois.

Caractéristiques du bâtiment :

5 quais de chargement avec plateformes élévatrices pour faciliter vos opérations logistiques.
Accès direct au rail pour des livraisons rapides et efficaces.
Monte-charges de grande capacité disponibles pour la manutention de marchandises volumineuses.
Charge supportée par la dalle variant entre 1,5 tonnes et 500 kg selon les surfaces et étages.

Ce bien est idéal pour les entreprises cherchant une surface d'atelier moderne et fonctionnelle, à proximité immédiate du centre-ville.

Ne manquez pas cette opportunité unique à Genève.

Pour plus d'informations et pour visiter, contactez-nous dès aujourd'hui.
3740104 jours
RARE ! Surface d'atelier de 250 m² au centre de Genève

GENÈVE SUISSE

Servette-Nations

CHF 4'167.-

TYPEATELIER

SURFACE 250 m²

Nous proposons à la location une surface d'atelier exceptionnelle de 250 m² située dans un bâtiment moderne et entièrement équipé, en plein cœur de Genève.

À seulement quelques minutes de l'autoroute et des principaux axes routiers, cette opportunité rare offre des prestations uniques sur le marché genevois.

Caractéristiques du bâtiment :

5 quais de chargement avec plateformes élévatrices pour faciliter vos opérations logistiques.
Accès direct au rail pour des livraisons rapides et efficaces.
Monte-charges de grande capacité disponibles pour la manutention de marchandises volumineuses.
Charge supportée par la dalle variant entre 1,5 tonnes et 500 kg selon les surfaces et étages.

Ce bien est idéal pour les entreprises cherchant une surface d'atelier moderne et fonctionnelle, à proximité immédiate du centre-ville.

Ne manquez pas cette opportunité unique à Genève.

Pour plus d'informations et pour visiter, contactez-nous dès aujourd'hui.
4740104 jours