Bureaux de 110m2  - proche Gare

Référence: L67940

2740104 jours

Bureau à louer, Genève

Bureaux de 110m2 - proche Gare

Loyer net : CHF 3'300.-
Charges : CHF 415.-

Type

Bureau

Surface habitable (m²)

110.00

Surface utile (m²)

110.00

Nombre d'étage(s)

1

Étage

RDC

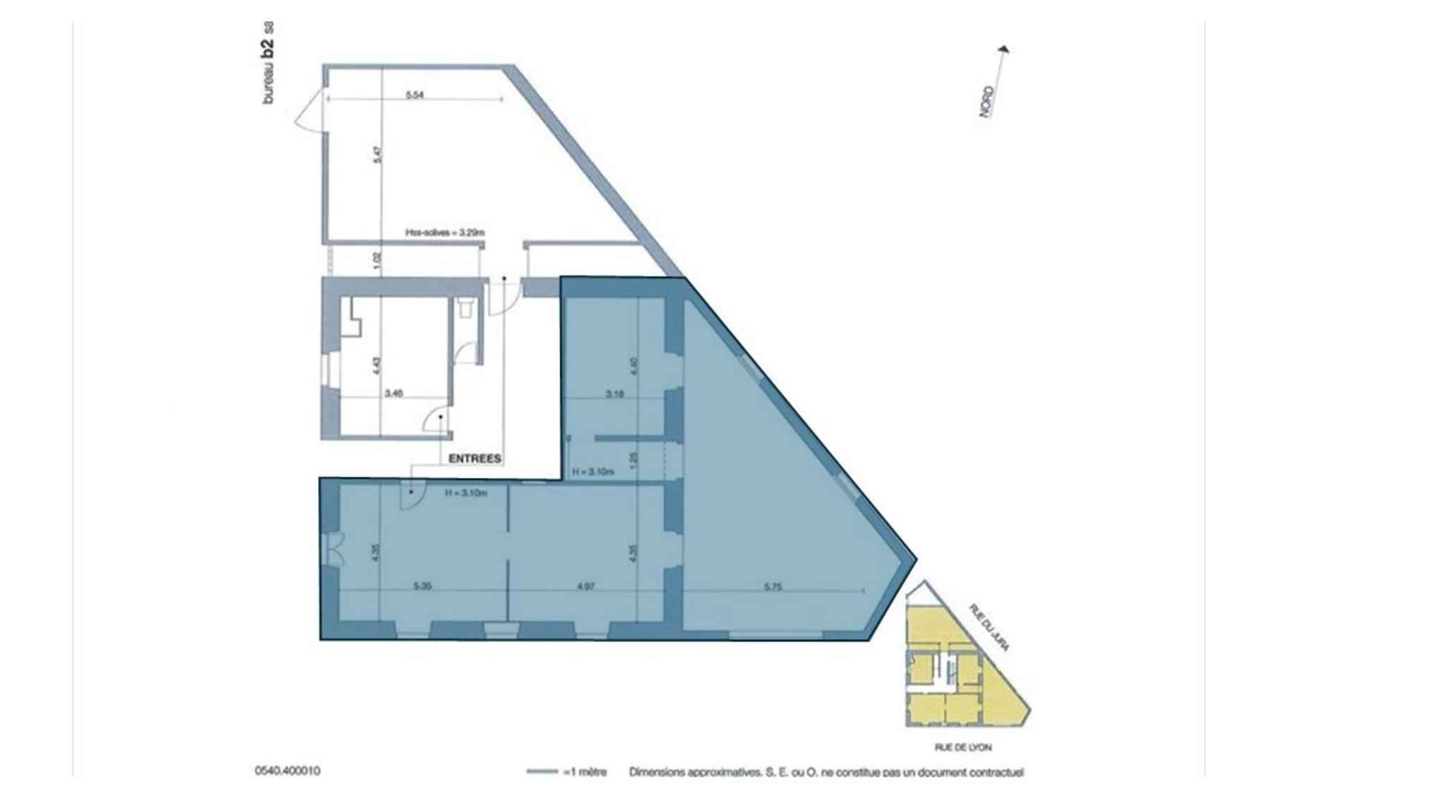
Nous vous proposons un espace de bureaux de 110 m² situé au rez-de-chaussée d’un immeuble d'habitation, idéalement placé au 12, rue de Lyon, à seulement 9 minutes à pied de la Gare Cornavin.
Le quartier est dynamique, proche du centre-ville et bénéficie d’un environnement agréable et commerçant, avec une très bonne accessibilité grâce aux nombreuses lignes TPG situées à seulement 210 m (14, 15, 17, 18, 3, A2).

Composition de l’espace :
3 bureaux
un open-space
1 sanitaire sur le palier.

Cet espace fonctionnel, bien desservi est parfaitement adapté pour des activités multi-médicales telles que kinésithérapie, orthophonie, psychologie, et autres professions paramédicales, mais aussi pour toutes activités administrative.

Emplacement du bien

AUTRES BIENS AUX ALENTOURS

RARE ! Surface d'atelier de 467m² au centre de Genève

GENÈVE SUISSE

Servette-Nations

CHF 7'783.-

TYPEATELIER

SURFACE 467 m²

Nous proposons à la location une surface d'atelier exceptionnelle de 467 m² située dans un bâtiment moderne et entièrement équipé, en plein cœur de Genève.

À seulement quelques minutes de l'autoroute et des principaux axes routiers, cette opportunité rare offre des prestations uniques sur le marché genevois.

Caractéristiques du bâtiment :

5 quais de chargement avec plateformes élévatrices pour faciliter vos opérations logistiques.
Accès direct au rail pour des livraisons rapides et efficaces.
Monte-charges de grande capacité disponibles pour la manutention de marchandises volumineuses.
Charge supportée par la dalle variant entre 1,5 tonnes et 500 kg selon les surfaces et étages.

Ce bien est idéal pour les entreprises cherchant une surface d'atelier moderne et fonctionnelle, à proximité immédiate du centre-ville.

Ne manquez pas cette opportunité unique à Genève.

Pour plus d'informations et pour visiter, contactez-nous dès aujourd'hui.
3740104 jours
RARE ! Surface d'atelier de 389 m² au centre de Genève

GENÈVE SUISSE

Servette-Nations

CHF 6'483.-

TYPEATELIER

SURFACE 389 m²

Nous proposons à la location une surface d'atelier exceptionnelle de 389 m² située dans un bâtiment moderne et entièrement équipé, en plein cœur de Genève.

À seulement quelques minutes de l'autoroute et des principaux axes routiers, cette opportunité rare offre des prestations uniques sur le marché genevois.

Caractéristiques du bâtiment :

5 quais de chargement avec plateformes élévatrices pour faciliter vos opérations logistiques.
Accès direct au rail pour des livraisons rapides et efficaces.
Monte-charges de grande capacité disponibles pour la manutention de marchandises volumineuses.
Charge supportée par la dalle variant entre 1,5 tonnes et 500 kg selon les surfaces et étages.

Ce bien est idéal pour les entreprises cherchant une surface d'atelier moderne et fonctionnelle, à proximité immédiate du centre-ville.

Ne manquez pas cette opportunité unique à Genève.

Pour plus d'informations et pour visiter, contactez-nous dès aujourd'hui.
3740104 jours
RARE ! Surface d'atelier de 250 m² au centre de Genève

GENÈVE SUISSE

Servette-Nations

CHF 4'167.-

TYPEATELIER

SURFACE 250 m²

Nous proposons à la location une surface d'atelier exceptionnelle de 250 m² située dans un bâtiment moderne et entièrement équipé, en plein cœur de Genève.

À seulement quelques minutes de l'autoroute et des principaux axes routiers, cette opportunité rare offre des prestations uniques sur le marché genevois.

Caractéristiques du bâtiment :

5 quais de chargement avec plateformes élévatrices pour faciliter vos opérations logistiques.
Accès direct au rail pour des livraisons rapides et efficaces.
Monte-charges de grande capacité disponibles pour la manutention de marchandises volumineuses.
Charge supportée par la dalle variant entre 1,5 tonnes et 500 kg selon les surfaces et étages.

Ce bien est idéal pour les entreprises cherchant une surface d'atelier moderne et fonctionnelle, à proximité immédiate du centre-ville.

Ne manquez pas cette opportunité unique à Genève.

Pour plus d'informations et pour visiter, contactez-nous dès aujourd'hui.
4740104 jours