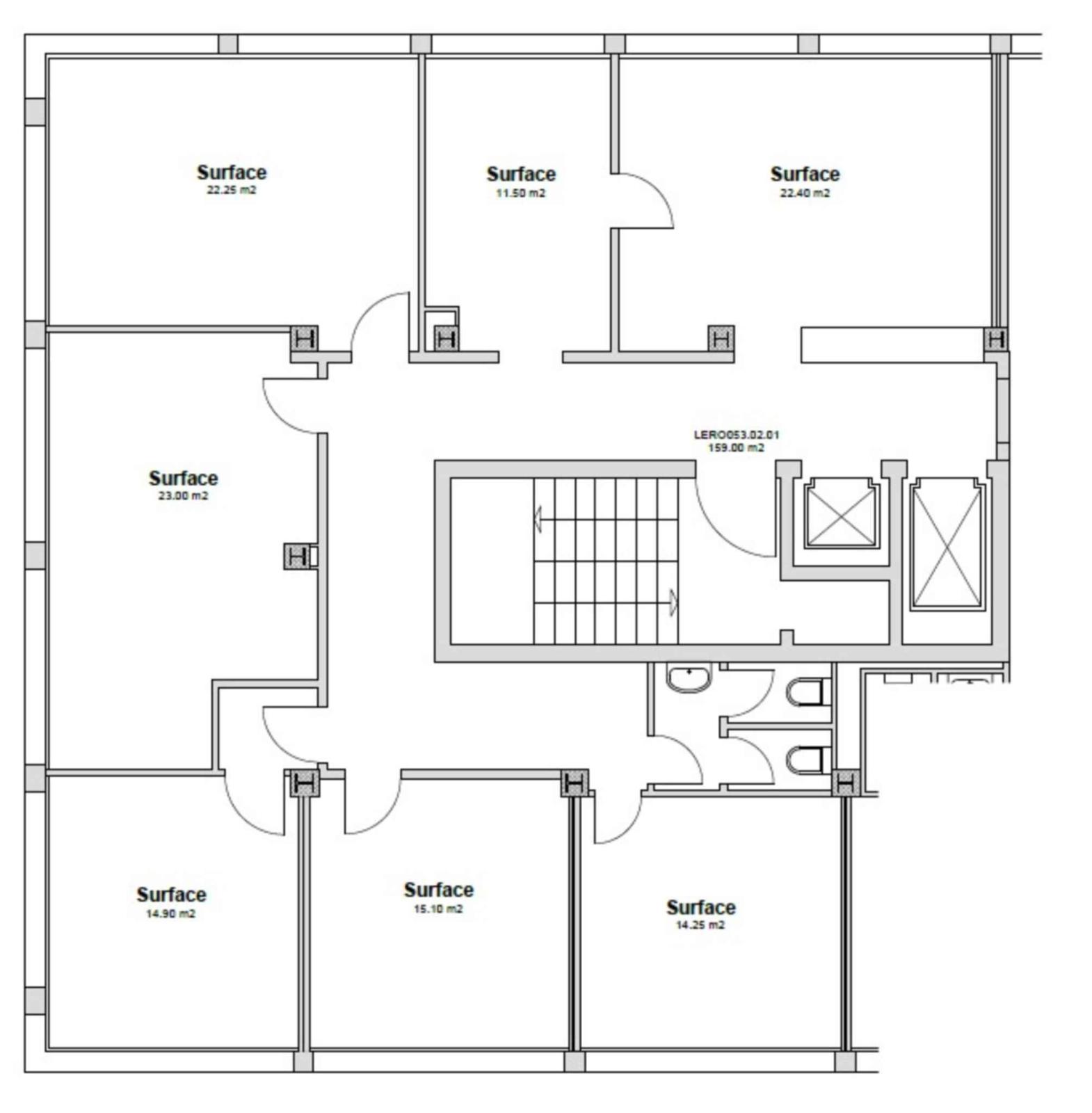
Bureaux modernes et lumineux 159 m2 à louer à la Chaux-de-Fonds

Référence: L67934

8740158 jours

Bureau à louer, La Chaux-de-Fonds

Bureaux modernes et lumineux 159 m2 à louer à la Chaux-de-Fonds

Loyer net : CHF 1'990.-
Charges : N.C

Type

Bureau

Surface habitable (m²)

159.00

Nombre d'étage(s)

1

Étage

1

Bureaux, locaux de 159 m2 à louer à la Chaux-de-Fonds

Idéalement situés sur le POD
TP en face du bâtiment.
Gare CFF à 10 minutes
Tous commerces à proximité

Distribution modulable avec open space et salle de conférence et bureaux cloisonnés
Belle hauteur sous plafond
Très lumineux

Disponibilité : immédiate

Loyer : dès CHF 150.-/m2/an HT. HC.

Emplacement du bien

AUTRES BIENS AUX ALENTOURS

Bureaux, locaux de 450 m2 à louer

GLAND SUISSE

Gland

Prix sur demande

TYPEBUREAU

SURFACE 450 m²

Installez votre entreprise dans un immeuble moderne au design soigné, offrant un excellent standing.
ELLIPSE accueille vos activités dans un environnement contemporain.

Situation idéale à 3 minutes à pied de la gare
Accès à l’autoroute facile à 5 minutes
Nombreuses places de parking

Plateau de 450 m2
Aménagements modernes et modulables
Salles de conférences
Service de restauration
Espace catering
Fibre optique

Disponibilité : Immédiate

Loyer et dossier complet sur demande
6740158 jours
Bureaux PLUG & PLAY, dès 15 m2 à louer

GLAND SUISSE

Gland

Prix sur demande

TYPEBUREAU

SURFACE 15 m²

Installez votre entreprise dans un immeuble moderne au design soigné, offrant un excellent standing.
ELLIPSE accueille vos activités dans un environnement contemporain et profitez des services premium proposés dans l’immeuble.

Situation idéale à 3 minutes à pied de la gare
Accès à l’autoroute facile à 5 minutes
Nombreuses places de parking

Bureaux entièrement équipés dès 15 m2
Aménagements modernes
Salles de conférences et Phone Booth en accès libre
Service de restauration
Espace catering
Fibre optique
Economat avec imprimante
Distribution du courrier
Service de nettoyage complet

Disponibilité : Immédiate

Loyer et dossier complet sur demande
6740158 jours
NEXT-GEN INDUSTRIAL SPACE - Greater Lausanne Area

LAUSANNE SUISSE

Lausanne Centre

Prix sur demande

TYPEATELIER

SURFACE 3000 m²

NEXT-GEN INDUSTRIAL SPACE - Greater Lausanne Area

Coming 2027

A brand-new industrial hall engineered for modern performance.
3'000 m² of flexible space.
5-meter clear ceiling height.

High-efficiency building designed to meet the latest energy performance standards.
Optimized envelope. Smart systems. Lower operating costs.
Multiple industrial-grade access points for seamless logistics and operations.
Built for flow. Built for scale.
Ideal for logistics, production, and future-proof businesses.
Strategically located near the highway and rail network, with national, and international connectivity.


Rent on request
28740158 jours