À louer – Bureaux bruts à aménager au Quartier de l’Étang

Référence: L67836

3740104 jours

Bureau à louer, Châtelaine

À louer – Bureaux bruts à aménager au Quartier de l’Étang

Loyer net : CHF 8'254.-
Charges : N.C

Type

Bureau

Surface habitable (m²)

283.00

Nombre d'étage(s)

1

Étage

4

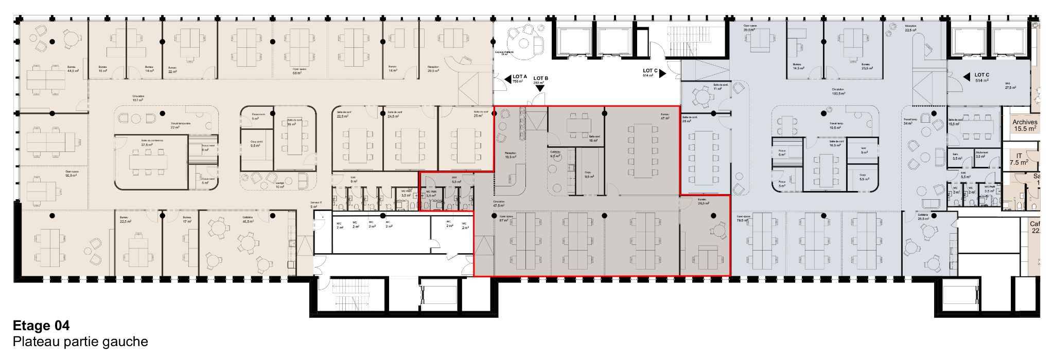
Découvrez ces bureaux bruts situés au 4ᵉ étage d’un bâtiment moderne et fonctionnel, au cœur du Quartier de l’Étang à Genève.

Idéal pour les entreprises à la recherche d’un espace modulable et évolutif, ce bien offre la possibilité d’un aménagement sur mesure, réalisé par le propriétaire moyennant un surloyer attractif.

Points forts :

- Bureaux bruts à aménager selon vos besoins
- Possibilité d’aménagement clé en main (avec surloyer)
- Bâtiment moderne, lumineux et confortable
- Prestations de qualité et espaces communs soignés
- Environnement résidentiel et commercial attractif
- Excellente accessibilité : transports publics et axes routiers à proximité
- Quartier dynamique offrant commerces, restaurants et services

Ces bureaux représentent une opportunité unique d’implanter votre activité dans un secteur en plein essor, combinant modernité, flexibilité et qualité de vie au travail.

Contactez-nous dès aujourd’hui pour plus d’informations ou pour organiser une visite.

Emplacement du bien

AUTRES BIENS AUX ALENTOURS

RARE ! Surface d'atelier de 467m² au centre de Genève

GENÈVE SUISSE

Servette-Nations

CHF 7'783.-

TYPEATELIER

SURFACE 467 m²

Nous proposons à la location une surface d'atelier exceptionnelle de 467 m² située dans un bâtiment moderne et entièrement équipé, en plein cœur de Genève.

À seulement quelques minutes de l'autoroute et des principaux axes routiers, cette opportunité rare offre des prestations uniques sur le marché genevois.

Caractéristiques du bâtiment :

5 quais de chargement avec plateformes élévatrices pour faciliter vos opérations logistiques.
Accès direct au rail pour des livraisons rapides et efficaces.
Monte-charges de grande capacité disponibles pour la manutention de marchandises volumineuses.
Charge supportée par la dalle variant entre 1,5 tonnes et 500 kg selon les surfaces et étages.

Ce bien est idéal pour les entreprises cherchant une surface d'atelier moderne et fonctionnelle, à proximité immédiate du centre-ville.

Ne manquez pas cette opportunité unique à Genève.

Pour plus d'informations et pour visiter, contactez-nous dès aujourd'hui.
3740104 jours
RARE ! Surface d'atelier de 389 m² au centre de Genève

GENÈVE SUISSE

Servette-Nations

CHF 6'483.-

TYPEATELIER

SURFACE 389 m²

Nous proposons à la location une surface d'atelier exceptionnelle de 389 m² située dans un bâtiment moderne et entièrement équipé, en plein cœur de Genève.

À seulement quelques minutes de l'autoroute et des principaux axes routiers, cette opportunité rare offre des prestations uniques sur le marché genevois.

Caractéristiques du bâtiment :

5 quais de chargement avec plateformes élévatrices pour faciliter vos opérations logistiques.
Accès direct au rail pour des livraisons rapides et efficaces.
Monte-charges de grande capacité disponibles pour la manutention de marchandises volumineuses.
Charge supportée par la dalle variant entre 1,5 tonnes et 500 kg selon les surfaces et étages.

Ce bien est idéal pour les entreprises cherchant une surface d'atelier moderne et fonctionnelle, à proximité immédiate du centre-ville.

Ne manquez pas cette opportunité unique à Genève.

Pour plus d'informations et pour visiter, contactez-nous dès aujourd'hui.
3740104 jours
RARE ! Surface d'atelier de 250 m² au centre de Genève

GENÈVE SUISSE

Servette-Nations

CHF 4'167.-

TYPEATELIER

SURFACE 250 m²

Nous proposons à la location une surface d'atelier exceptionnelle de 250 m² située dans un bâtiment moderne et entièrement équipé, en plein cœur de Genève.

À seulement quelques minutes de l'autoroute et des principaux axes routiers, cette opportunité rare offre des prestations uniques sur le marché genevois.

Caractéristiques du bâtiment :

5 quais de chargement avec plateformes élévatrices pour faciliter vos opérations logistiques.
Accès direct au rail pour des livraisons rapides et efficaces.
Monte-charges de grande capacité disponibles pour la manutention de marchandises volumineuses.
Charge supportée par la dalle variant entre 1,5 tonnes et 500 kg selon les surfaces et étages.

Ce bien est idéal pour les entreprises cherchant une surface d'atelier moderne et fonctionnelle, à proximité immédiate du centre-ville.

Ne manquez pas cette opportunité unique à Genève.

Pour plus d'informations et pour visiter, contactez-nous dès aujourd'hui.
4740104 jours