Beausoleil - Appartement T4 dans une résidence neuve

Référence: 85304443

1Aujourd'hui

Appartement à vendre, Beausoleil

Beausoleil - Appartement T4 dans une résidence neuve

EUR (€) 1'490'000

Type

Appartement

Pièce(s)

4.00

Surface habitable (m²)

94.33

Surface totale (m²)

112.85

Nombre d'étage(s)

5

Chambre(s)

3

N° Lot

A41

Type de chauffage

Climatisation

Exposition

Sud

Étage

4

Terrasse(s)

2

Surface terrasse(s) (m²)

18.84

Au cœur de Beausoleil, surplombant la Principauté de Monaco, ce nouveau projet offre des vues exceptionnelles sur la mer, tout en préservant l’intimité des résidents.

L’architecture contemporaine se distingue par un style épuré et dynamique, avec des volumes rectilignes et des lignes tendues.

Les façades, dotées de larges ouvertures, garantissent une luminosité optimale tout au long de l’année. Les balcons filants et les débords de toiture sont mis en valeur par un jeu subtil d’horizontalités et de verticalités, ainsi que par des traitements variés des textures et des matériaux, incluant claustras et voiles verticaux. Ces éléments créent des cadrages uniques sur la Méditerranée et la Principauté, tout en offrant de vastes espaces extérieurs.

Les toitures et jardins, soigneusement aménagés sur différentes restanques, proposent des espaces naturels ensoleillés et paisibles. Un véritable cœur d’îlot verdoyant et rafraîchissant a été conçu pour offrir confort et bien-être aux résidents.

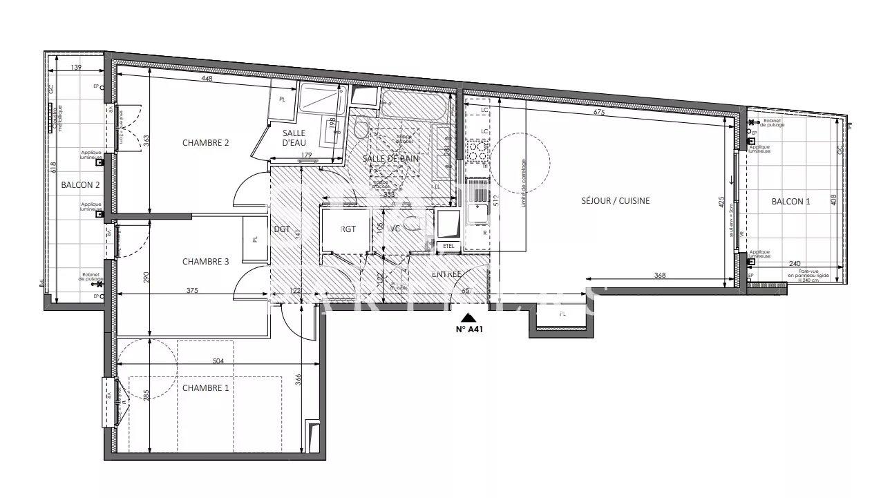
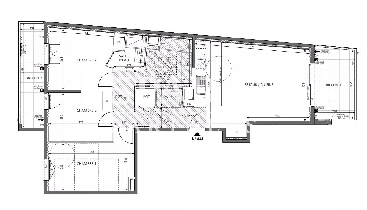
Cet appartement de 4 pièces se compose d’une entrée, d’un spacieux séjour avec cuisine ouverte, de 3 chambres, d'une salles de douche, d’une salle de bains, des toilettes pour les invités, d’une dégagement, d’un espace de rangement ainsi que de deux belles terrasses.

Des garages en sous-sol peuvent être acquis en supplément.

Livraison prévue au 1er trimestre 2028.

Emplacement du bien

AUTRES BIENS AUX ALENTOURS

Cœur de Cap d'Ail - Appartement 4 pièces - Proche de Monaco

CAP-D'AIL

€ 1'694'000

TYPEAPPARTEMENT

PIÈCES 4.0

CHAMBRES 3

SURFACE 86.4 m²

Situé à la frontière Monte Carlo, et seulement 10 minutes à pied de la plage renommée "La Mala Beach", Skyview Palace Residences propose exclusivement 15 Appartements de Luxe et des Penthouses avec toit terrasse et piscine privé entourées de végétation, dans un véritable paradis residential et une oasis de paix. Grand standing avec des finitions de haut qualité, grandes terrasses, jardins, piscine extérieur, garages, salle de Gym, Spa, Video surveillance, service de conciergerie privé. Offrant une vue splendide sur la Méditerranée, Skyview Palace reflète un cadre de vie lumineux et offre une vue imprenable sur la mer. Très rare opportunité de posséder une Villa ou un Appartement Villa à Cap D'Ail. Cet appartement de 4 pièces se compose d'un séjour/cuisine américaine sur mesure, 3 belles chambres et 2 salles de bains, ainsi que d'une terrasse de la superficie de 28.82 m2. Les garages sont vendus séparément.
151Aujourd'hui
Roquebrune Cap Martin - Bel appartement dernière étage - vue mer

ROQUEBRUNE-CAP-MARTIN

€ 470'000

TYPEAPPARTEMENT

PIÈCES 2.0

CHAMBRE 1

SURFACE 47 m²

Situé à Roquebrune-Cap-Martin, sur le plateau, au sein d’une belle résidence avec piscine et court de tennis, découvrez ce charmant appartement de deux pièces offrant une superbe vue sur la mer. D’une superficie d’environ 47 m², il se compose d’une entrée avec placard, d’un séjour lumineux avec cuisine ouverte, d’une chambre confortable, d’une salle de bains, ainsi que de toilettes indépendantes pour les invités. Deux balcons viennent compléter ce bien, offrant une agréable ouverture sur l’extérieur et une vue imprenable sur la Méditerranée. L’environnement calme, les prestations de qualité de la résidence et la situation recherchée font de cet appartement une opportunité idéale, que ce soit pour une résidence principale, un pied-à-terre ou un investissement locatif.
168Aujourd'hui
Studio au Cœur de Monaco

MONACO

€ 2'495'000

TYPEAPPARTEMENT

PIÈCES 1.0

SURFACE 44 m²

Situé en plein cœur de Monaco, à quelques pas du port et de toutes les commodités, ce charmant studio moderne se trouve au sein d'une résidence neuve et prestigieuse offrant des services luxueux. D'une superficie de 44 m², il bénéficie de finitions de très haute qualité : menuiserie sur mesure, équipements design et matériaux nobles. Il se compose d'une entrée, d'un salon avec coin cuisine, d'une salle de bains, ainsi que d'un espace de travail indépendant et fermé, idéal pour le télétravail ou les activités créatives. Un parfait pied-à-terre ou un excellent investissement locatif. Usage mixte
10Aujourd'hui