Bureaux de 120m2 modernes et lumineux – Secteur Aéroport

Référence: L50978

3740104 jours

Bureau à louer, Cointrin

Bureaux de 120m2 modernes et lumineux – Secteur Aéroport

Loyer net : CHF 1'007.-
Charges : CHF 630.-

Type

Bureau

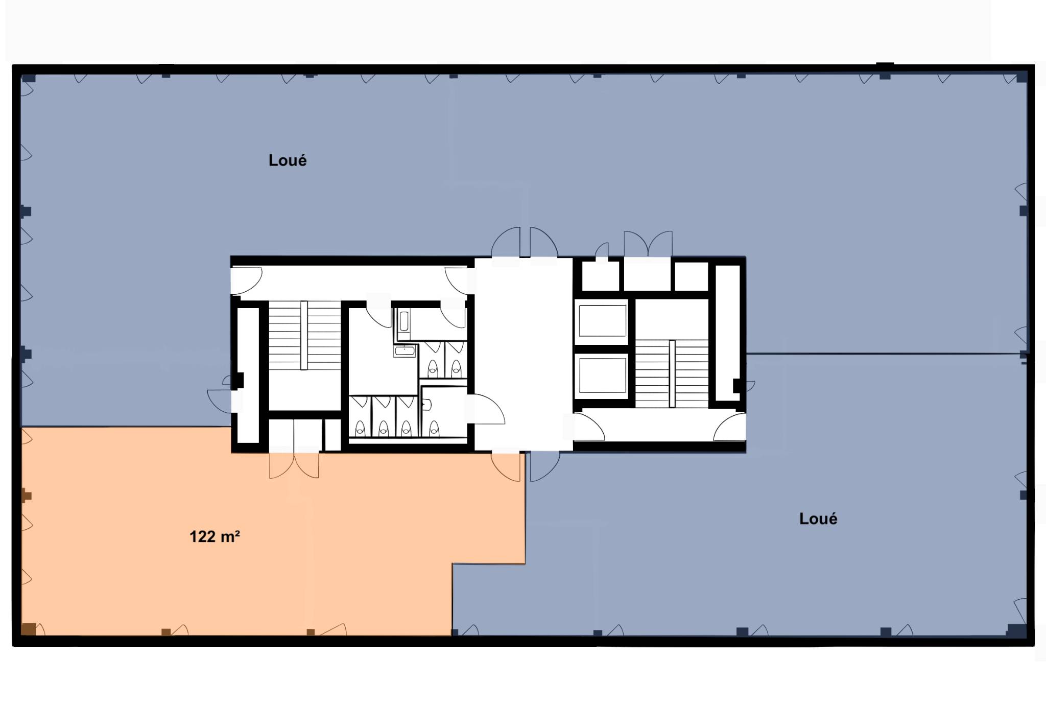
Surface habitable (m²)

120.00

Surface utile (m²)

120.00

Nombre d'étage(s)

1

Étage

5

Cave(s)

1

Montant parking

445

Disponible à partir du 11/03/2026

Pré-Bois Building (PBB) est l’adresse idéale pour vos futurs bureaux ! Situé dans un emplacement stratégique, ce bâtiment labellisé Haute Performance Énergétique offre un cadre de travail moderne et fonctionnel.

Avec 2’700 m2 de bureaux répartis sur 5 niveaux et divisibles dès 147 m2, PBB propose des espaces lumineux grâce à une façade en larges baies vitrées. Les bureaux sont totalement modulables selon vos besoins, avec une participation du bailleur aux travaux (à hauteur de CHF 500.-/m²/an).
Surfaces d'environ 180m2 disponibles aux 2ème - 3ème et 5ème étage.


Chaque plateau d’environ 610 m2 est divisible dès 144 m2. Sur chaque palier, trois blocs sanitaires sont à disposition des locataires, avec entretien inclus dans le montant des charges.

Une surface de 120m2 est disponible au 5ème étage.

L’immeuble bénéficie également d’une terrasse privative, offrant un espace extérieur agréable pour vos pauses et moments de détente.

L’emplacement est idéal, avec une excellente accessibilité et de nombreux services à proximité. Les surfaces bénéficient d’un faux plancher technique, et des arrivées d'air rafraichie, les surfaces sont semi-aménagées et offrent un grand confort de travail.

L’arrêt de bus « Grand-Hangar » se trouve au pied de l’immeuble, et les lignes de tram sont accessibles en seulement 1 minute à pied.

Un restaurant est présent dans l’immeuble, et plusieurs commerces, restaurants et salles de fitness se trouvent à proximité.
De plus 2 étages de parkings en sous-sol offrent la possibilité de louer des places : CHF 250.-/pl/mois.
Des espaces de stockage de 10 à 12m2 sont également disponibles à la location : CHF 125.-/m2/an Ht Hc

Les bureaux sont desservis par les lignes de bus 23, 28, 53, 56 et 57, ainsi que par les trams 14, 15, 17 et 18.

Profitez d’un cadre de travail moderne et optimisé pour la performance de votre entreprise.
Contactez-nous dès maintenant pour une visite !

*** Immeuble soumis à la TVA ***

Emplacement du bien

AUTRES BIENS AUX ALENTOURS

RARE ! Surface d'atelier de 467m² au centre de Genève

GENÈVE SUISSE

Servette-Nations

CHF 7'783.-

TYPEATELIER

SURFACE 467 m²

Nous proposons à la location une surface d'atelier exceptionnelle de 467 m² située dans un bâtiment moderne et entièrement équipé, en plein cœur de Genève.

À seulement quelques minutes de l'autoroute et des principaux axes routiers, cette opportunité rare offre des prestations uniques sur le marché genevois.

Caractéristiques du bâtiment :

5 quais de chargement avec plateformes élévatrices pour faciliter vos opérations logistiques.
Accès direct au rail pour des livraisons rapides et efficaces.
Monte-charges de grande capacité disponibles pour la manutention de marchandises volumineuses.
Charge supportée par la dalle variant entre 1,5 tonnes et 500 kg selon les surfaces et étages.

Ce bien est idéal pour les entreprises cherchant une surface d'atelier moderne et fonctionnelle, à proximité immédiate du centre-ville.

Ne manquez pas cette opportunité unique à Genève.

Pour plus d'informations et pour visiter, contactez-nous dès aujourd'hui.
3740104 jours
RARE ! Surface d'atelier de 389 m² au centre de Genève

GENÈVE SUISSE

Servette-Nations

CHF 6'483.-

TYPEATELIER

SURFACE 389 m²

Nous proposons à la location une surface d'atelier exceptionnelle de 389 m² située dans un bâtiment moderne et entièrement équipé, en plein cœur de Genève.

À seulement quelques minutes de l'autoroute et des principaux axes routiers, cette opportunité rare offre des prestations uniques sur le marché genevois.

Caractéristiques du bâtiment :

5 quais de chargement avec plateformes élévatrices pour faciliter vos opérations logistiques.
Accès direct au rail pour des livraisons rapides et efficaces.
Monte-charges de grande capacité disponibles pour la manutention de marchandises volumineuses.
Charge supportée par la dalle variant entre 1,5 tonnes et 500 kg selon les surfaces et étages.

Ce bien est idéal pour les entreprises cherchant une surface d'atelier moderne et fonctionnelle, à proximité immédiate du centre-ville.

Ne manquez pas cette opportunité unique à Genève.

Pour plus d'informations et pour visiter, contactez-nous dès aujourd'hui.
3740104 jours
RARE ! Surface d'atelier de 250 m² au centre de Genève

GENÈVE SUISSE

Servette-Nations

CHF 4'167.-

TYPEATELIER

SURFACE 250 m²

Nous proposons à la location une surface d'atelier exceptionnelle de 250 m² située dans un bâtiment moderne et entièrement équipé, en plein cœur de Genève.

À seulement quelques minutes de l'autoroute et des principaux axes routiers, cette opportunité rare offre des prestations uniques sur le marché genevois.

Caractéristiques du bâtiment :

5 quais de chargement avec plateformes élévatrices pour faciliter vos opérations logistiques.
Accès direct au rail pour des livraisons rapides et efficaces.
Monte-charges de grande capacité disponibles pour la manutention de marchandises volumineuses.
Charge supportée par la dalle variant entre 1,5 tonnes et 500 kg selon les surfaces et étages.

Ce bien est idéal pour les entreprises cherchant une surface d'atelier moderne et fonctionnelle, à proximité immédiate du centre-ville.

Ne manquez pas cette opportunité unique à Genève.

Pour plus d'informations et pour visiter, contactez-nous dès aujourd'hui.
4740104 jours