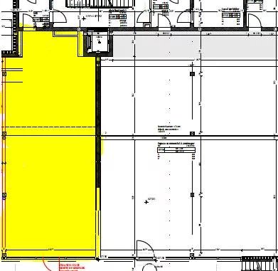
TYPELOCAL COMMERCIAL
SURFACE
212 m²
À seulement trente mètres du centre commercial de Satigny, au rez-de-chaussée d'un immeuble résidentiel, se trouve une vaste arcade immédiatement disponible.
Elle propose une variété de surfaces et d'options d'aménagement intérieur, selon les besoins des locataires. Cet espace est parfait pour des open-spaces, du coworking, des fiduciaires, des cabinets comptables, ainsi que pour des activités médicales, paramédicales, sportives ou de fitness, entre autres.
Vous bénéficierez d'un accès direct au parking couvert du centre commercial.
Satigny est en pleine expansion, avec déjà des établissements tels qu'une pharmacie, un cabinet dentaire, un salon de coiffure et une Coop.
De nombreuses options d'accompagnement technique et financier, ainsi que des conseils en agencement, sont également à votre disposition.