EXCLUSIVITÉ - LE TROCADÉRO - STUDIO

Référence: EURO13087

236 jours

Appartement à vendre, Monaco

EXCLUSIVITÉ - LE TROCADÉRO - STUDIO

EUR (€) 2'400'000

Type

Appartement

Pièce(s)

1.00

Surface habitable (m²)

40.00

Surface totale (m²)

50.00

Salle(s) de bain

1

Étage

2

Cave(s)

1

Quartier

Larvotto

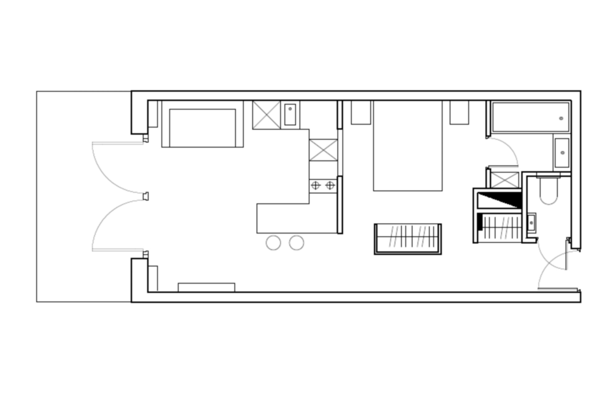
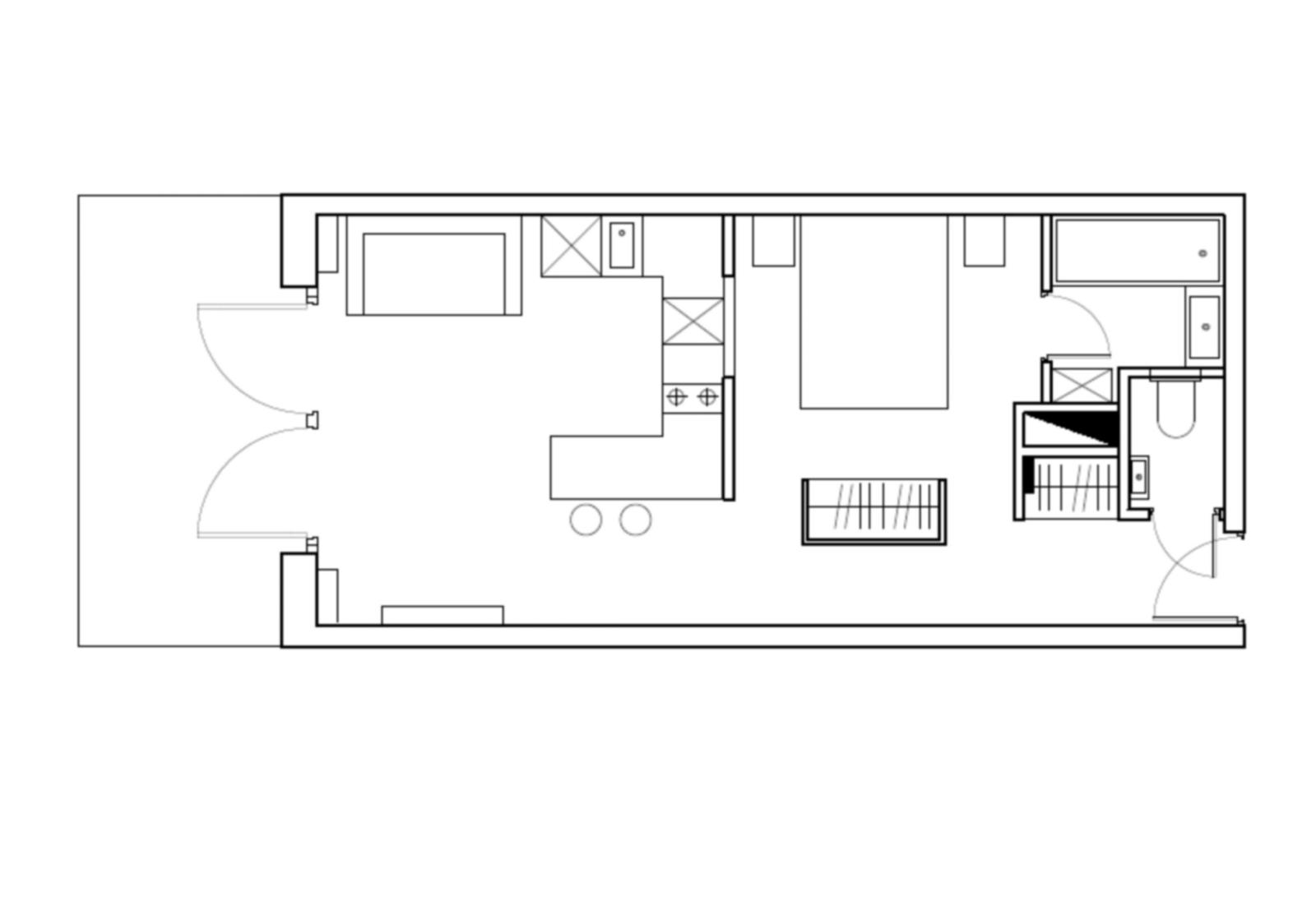
Situé à proximité des plages du Larvotto, du boulevard des Moulins et de ses commerces, ce studio entièrement rénové bénéficie d’une superficie de 40m2 + 10m2 terrasse.

Il se compose d’une entrée, d’une cuisine américaine équipée, d’un séjour donnant sur une loggia, d’un coin nuit séparé, d’une salle de bains et d’un toilette indépendant. L’appartement bénéficie d’une vue mer et jardins.

Une cave dans l’immeuble complète ce bien.

Actuellement loué jusqu’au 14/03/2026 à 3.399€ par mois.

Accédez à la visite vidéo du bien via le lien ci-après : https://www.instagram.com/reel...ccFeWsLNp/

Emplacement du bien

AUTRES BIENS AUX ALENTOURS