Appartement rénové de deux pièces avec une vue jusqu’à la mer

Référence: VCB - LRA - 30

06 jours

Appartement à vendre, Monaco

Appartement rénové de deux pièces avec une vue jusqu’à la mer

EUR (€) 3'200'000

Type

Appartement

Pièce(s)

2.00

Surface habitable (m²)

56.00

Surface totale (m²)

60.00

Chambre(s)

1

Salle(s) de bain

1

Étage

4

Surface terrasse(s) (m²)

4.00

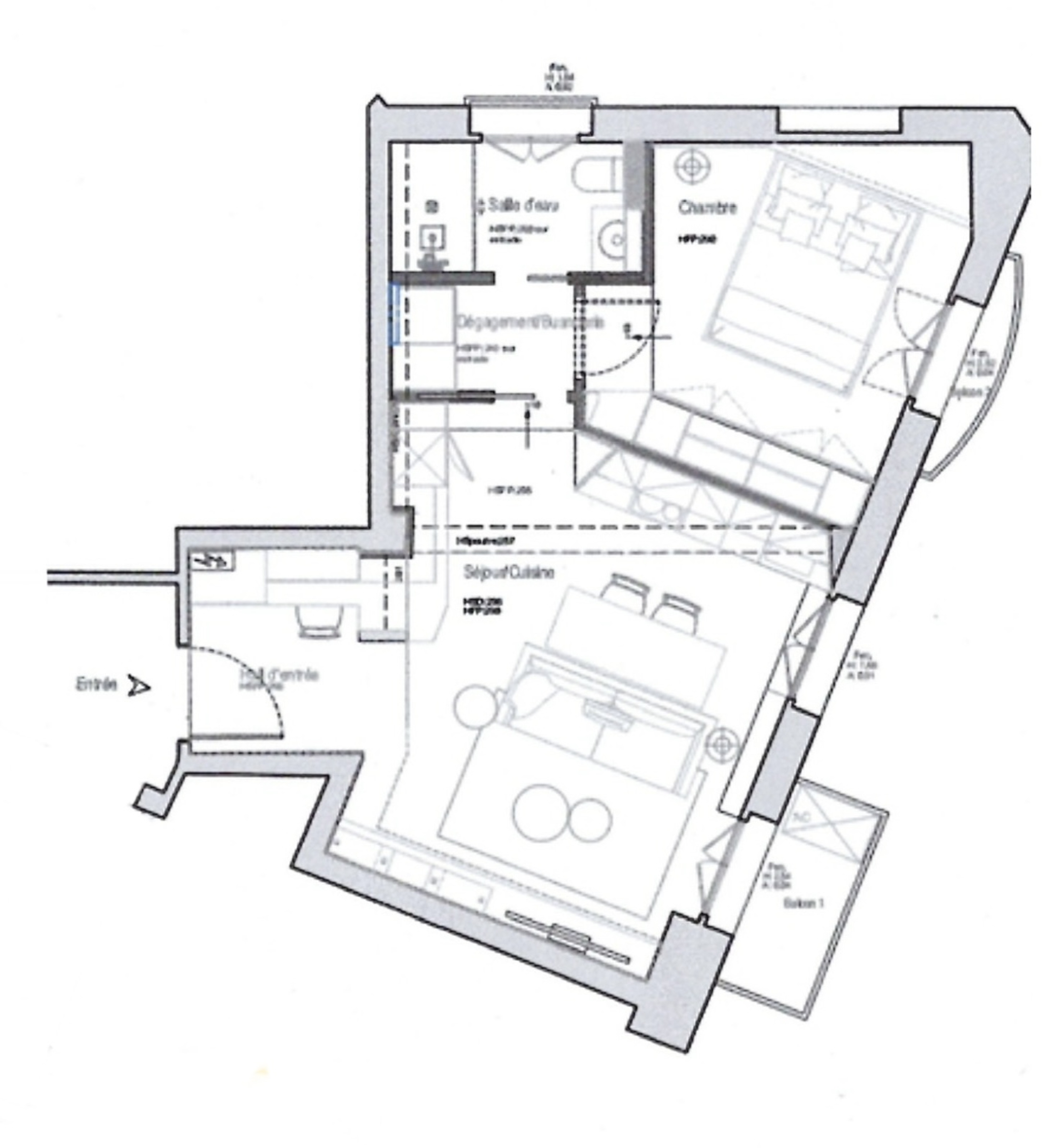
D'une superficie de 60 m², il se compose d'un hall d'entrée avec un espace bureau, d'un grand séjour avec une cuisine ouverte entièrement équipée, d'une chambre confortable avec de grandes armoires, et d'une salle de bain contemporaine avec fenêtre.

L'appartement, récemment rénové avec des matériaux de qualité et équipé d'une climatisation réversible, représente une excellente opportunité à la fois pour l’investissement locatif et comme pied-à-terre. Deux balcons orientés à l'est, vous permettent de profiter de la lumière du matin, complétant ce bien exceptionnel. De plus, l'appartement n'est pas soumis aux lois de régulation locative.

Emplacement du bien

AUTRES BIENS AUX ALENTOURS

Bureaux de Standing au Park Palace – Carré d’Or, Monaco

MONACO

Carré d'Or

€ 4'500'000

TYPEBUREAU

PIÈCES 3.0

SURFACE 89 m²

L’agencement intérieur est optimal : les bureaux se composent de trois pièces distinctes, dont deux bureaux fermés — l’un d’eux avec accès direct au jardin — ainsi qu’un grand open space pouvant accueillir plusieurs postes de travail. Une cuisine séparée entièrement équipée, un local technique dédié à l’informatique et des sanitaires modernes complètent cet espace fonctionnel et agréable.

L’ensemble bénéficie d’une belle luminosité naturelle grâce à une verrière orientée plein sud et une vitrine ouvrant sur un large dégagement, sans vis-à-vis. La conception intérieure associe élégance et efficacité : carrelage grand format, murs blancs, encadrements soignés, éclairage contemporain, climatisation neuve et installations électriques optimisées. L’entrée vitrée est équipée de verre de sécurité, garantissant confort et tranquillité.

Les bureaux sont actuellement loués dans le cadre d’un bail professionnel, assurant un bon rendement locatif. Cette opportunité rare s’adresse aussi bien aux investisseurs recherchant un placement de qualité qu’aux entreprises souhaitant s’implanter durablement dans un quartier emblématique.

Enfin, la résidence Park Palace offre à ses occupants des prestations haut de gamme telles qu’un service de conciergerie 24h/24, une piscine intérieure, un sauna et une salle de sport. À deux pas du Casino, des boutiques de luxe et des établissements les plus renommés de la Principauté, cette adresse conjugue prestige, accessibilité et qualité de vie professionnelle.

72240 jours